This well-maintained one-bedroom apartment presents an excellent opportunity for those seeking a peaceful setting with a strong local community, while remaining within easy reach of local amenities and public transport links.
The property is thoughtfully arranged to maximise space and natural light, creating a welcoming and comfortable environment throughout. Upon entering, you are greeted by a spacious bedroom that benefits from large windows, allowing an abundance of natural light to fill the room and enhance the sense of space. The separate kitchen is well-proportioned and designed for practicality, offering ample cabinetry and worktop space for all your culinary needs. The family bathroom is tastefully appointed, providing both functionality and comfort. The apartment’s layout ensures a seamless flow between rooms, making it ideal for both relaxing and entertaining.
Residents will appreciate the calm atmosphere of the building, which is set in a quiet area renowned for its friendly and engaged community spirit. The convenience of a dedicated parking facility adds further appeal, ensuring hassle-free parking at all times. For those who value connectivity, the property is ideally situated close to reliable public transport options, making commuting to the city centre or neighbouring areas straightforward and efficient. The proximity to local parks offers the added benefit of green spaces nearby, perfect for leisurely walks or outdoor activities.
This apartment is an attractive proposition for first-time buyers, professionals, or those seeking a manageable and comfortable home in a desirable location. With its combination of spacious interiors, plentiful natural light, and practical features, this property delivers an exceptional standard of living. Early viewing is highly recommended to appreciate the quality and appeal of this delightful home.
Communal Entrance
Stairs to;
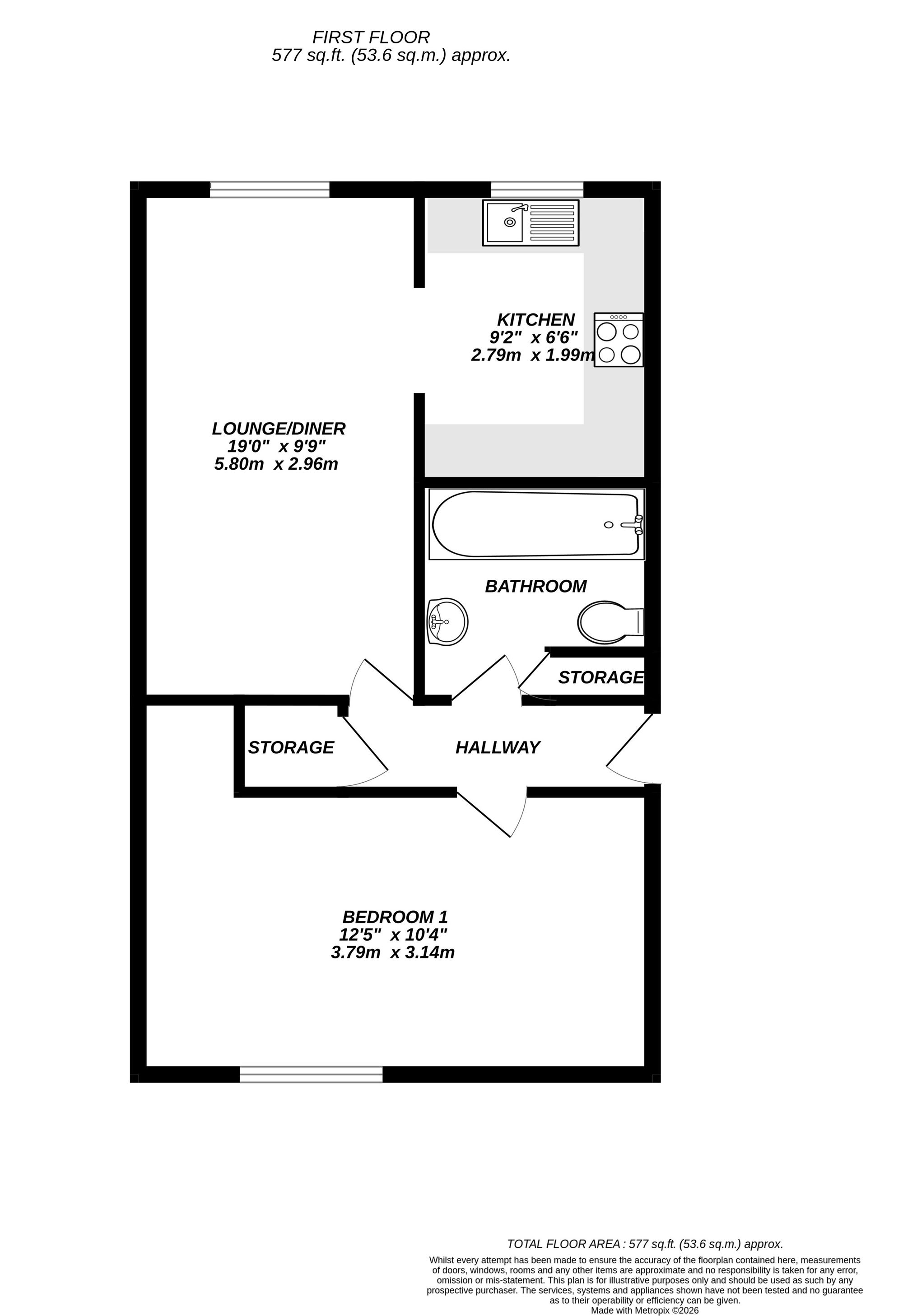
Hallway
Entry phone system, storage cupboard, doors to;
Lounge/Diner [19' 0" x 9' 9" (5.80m x 2.96m)]
Rear aspect double glazed window, electric heater, t.v point.
Kitchen [9' 2" x 6' 6" (2.79m x 1.99m)]
Rear aspect double glazed window, tiled walls, integrated electric hob, oven, space for washing machine, space for fridge.
Bedroom One
Front aspect double glazed window, electric heater, space for wardrobe.
Bathroom
Tiled walls and flooring, bath with shower attachment, w.c, sink with drainer.
Ref: 5b382e96-6fc6-4535-af2d-941ac194d93f