


Presenting this well-maintained 2 Bedroom Apartment, situated on the ground floor and boasting two bedrooms for spacious living. The property is well presented throughout, exuding a welcoming ambience that is sure to charm residents and guests alike. With a private rear garden, this apartment offers a serene outdoor space ideal for relaxation and recreation.
Conveniently located close to Uxbridge Town Centre, this property provides easy access to an array of amenities, including shops, restaurants, and parks, ensuring residents have all they need at their fingertips. Moreover, with quick links to the A/M40, commuting to nearby towns and cities is made effortless, enhancing the property's appeal further.
Offered with no upper chain, (this apartment provides a seamless transition for potential buyers, eliminating any delays typically associated with property transactions. (The property) is primed for immediate occupancy, allowing new residents to settle in and make it their own without hesitation.
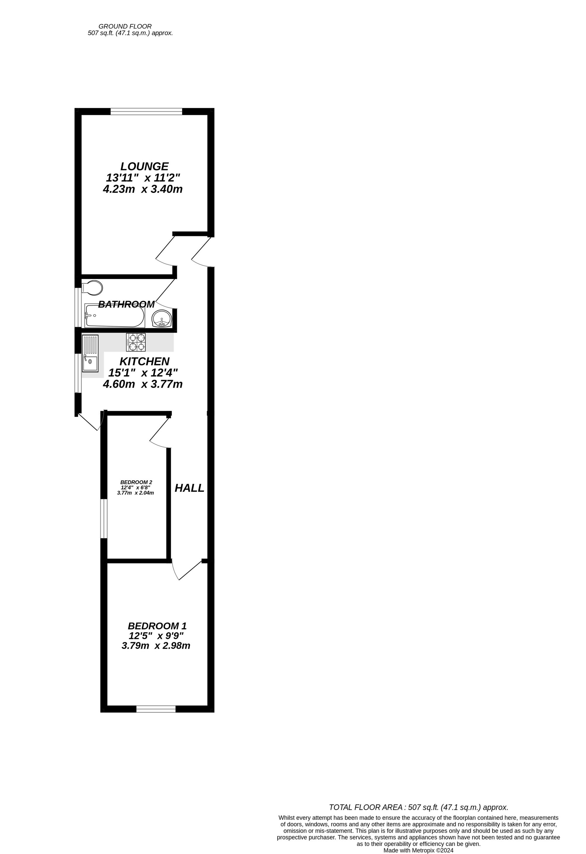
Hall
Laminate flooring, doors to;
Lounge [13' 11" x 11' 2" (4.23m x 3.40m)]
Front aspect double glazed window, laminate flooring, radiator.
Kitchen [15' 1" x 12' 4" (4.60m x 3.77m)]
Side aspect double glazed window, door leading to garden, laminate flooring, integrated gas hob, oven, sink with drainer, plumbing for washing machine, space for fridge/freezer, range of base level and wall mounted units.
Bedroom One [12' 5" x 9' 9" (3.79m x 2.98m)]
Rear and side aspect double glazed windows, laminate flooring, radiator.
Bedroom Two [12' 4" x 6' 8" (3.77m x 2.04m)]
Side aspect double glazed window, laminate flooring, radiator
Bathroom
Tiled walls and flooring, w.c, wash hand basin, bath with shower attachment, heated towel rail.
Ref: d6e7e6d0-7a75-4299-a368-2b142f1a4ba4